収納・リビング・水回り・家事動線に便利な間取りアイデア9選【vol.1】
| 設計と間取り
注文住宅は自由に間取りを考えられる反面、どんな間取りすればよいか悩むことも多いでしょう。使い勝手のよい理想の住まいの実現に役立つ間取りのアイデアをお伝えします。

片付け上手になれる、本当に役立つ収納
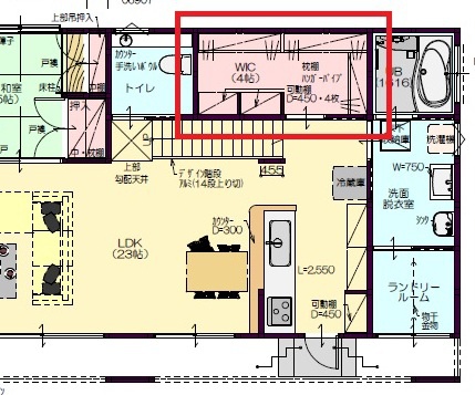
(1)リビング収納・ファミリー収納
家族のみんなが集まるリビングは小物やおもちゃ、新聞、郵便物などの細々したもので散らかりがち。急なお客様に慌てて片付けるということもあるのではないでしょうか。そこでおすすめするのがリビング収納・ファミリー収納です。2~3帖の広いスペースを取り、家族の衣類や子ども用品を1カ所にまとめて収納すれば、物が分散せず整理がしやすいと好評です。


◎ポイント
・帰宅後はリビングですぐに着替えられます
・朝の忙しい時間もリビングで出かける準備が可能
・子どものランドセルも片付けられて便利
・水回りに近い位置に設置すると洗濯などの家事の効率化につながります
・2~3帖の広さがあると使い勝手がよいでしょう
・2階の寝室と子ども部屋の間につくるケースもあります


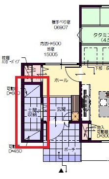
(2)土間収納
玄関の土間を広く取り、シューズボックスの機能だけでなく物置代わりに使える収納スペースです。雨にぬれたものも収納でき、部屋が汚れる心配がありません。


◎ポイント
・2帖ほどあればベビーカーや三輪車も置けます
・ハンガーパイプを設置してコート、レインウェアを吊っておくと外出時に便利


(3)小屋裏収納
屋根裏のデッドスペースを活用した収納スペースです。使用頻度の低いものを収納しておくとよいでしょう。


◎ポイント
・収納するものをあらかじめ想定して場所を決めましょう
・屋根の形とどの部屋から利用するかを考えて設置しましょう


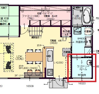
(4)洗面室の可動棚
洗面室に可動棚を設置した収納スペースです。タオルやバスタオル、洗剤など洗面室で使うものをすっきりと収納できます。

◎ポイント
・2~3帖ほど広めのスペースを取るとよいでしょう


家族が集まるリビングの間取り
最近は玄関の近くにリビングを配置し、家族が自然とリビングに集まるような間取りが主流です。
リビングが生活の中心になることにより、居心地のよさや開放感が求められています。

(1)吹き抜け・勾配天井
吹き抜けや勾配天井が人気です。勾配天井は屋根の傾きを利用した天井で傾きの分だけ空間が広くなります。


◎ポイント
・吹き抜け・勾配天井の位置は構造面への配慮が必要です
・勾配天井は梁を見せて、木の素材感や温かみを演出できます
・シーリングファンを使い暖房効率を高めるのがおすすめ


(2)リビング階段
階段をリビングに配置することにより、子どもが2階に上がるときにリビングで顔を合わせコミュニケーションをとることができます。

◎ポイント
・アルミ製や木製などのデザイン階段を採用するとリビングのポイントになります。また、開放感が出ます
・暖房効率を考えて扉をつけて階段室とすることもあります


一方で、リビングに階段があると音が2階に上がりやすいことがデメリット。夜遅くに帰宅したときに家族を起こさないように気を遣うことも。夜勤がある家族は、玄関付近に階段をつくると音が気になりにくいでしょう。


(3)スタディコーナー
リビングの一角にスタディコーナーやパソコンコーナーを設置すると、家事をしながら子どもが勉強する様子を見ることができて安心です。勉強の効率も上がったという声もあります。

◎ポイント
・間仕切りをしたり、段差をつけたりして落ち着ける空間づくりが大切



効率よく家事がこなせる間取り
(1)水回りの動線
キッチン・洗面室・バスルームを近くに配置し、移動距離をなるべく短くするとよいでしょう。
料理をしながら洗濯などの他の家事にも目を配ることができ、家事の効率化につながります。

◎ポイント
・リビング収納が近くにあれば洗濯物が出しやすくなります
・家事動線に洗濯物をたたんだり、アイロンがけができる家事室を設けるケースもあります


(2)室内干しスペース
夜間に洗濯をする家族は、室内干しができる空間があれば便利です。


◎ポイント
・部屋にあまり向かない西側を活用して室内干しスペースを設置
・窓を大きめに取り、採光と換気ができるようにしましょう
・室内から屋外にスムーズに干せる動線を確保しましょう。屋外の干しスペースには雨用のテラス屋根があると便利です


続きはこちら
収納・リビング・水回り・家事動線に便利な間取りアイデア9選【vol.2】