収納・リビング・水回り・家事動線に便利な間取りアイデア9選【vol.2】
| 設計と間取り
注文住宅は自由に間取りを考えられる反面、どんな間取りすればよいか悩むことも多いでしょう。使い勝手のよい理想の住まいの実現に役立つ間取りのアイデアをお伝えします。

お客様がよく訪れる家の間取りの工夫
以前は応接室に通すことが多かったお客さんも、現在はリビングに上がってもらうことが多くなっています。リビング中心の家は生活空間が丸見えになってしまう恐れも。生活空間からお客さんの目線が外れるような工夫が必要です。
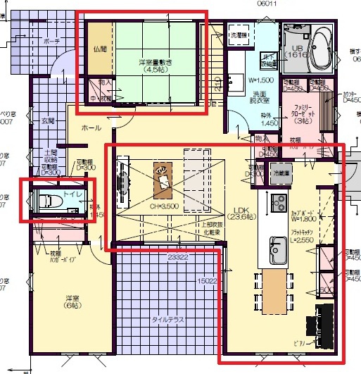
また、玄関からも直接入れる和室をつくり、来客対応の部屋として利用することもできます。

◎ポイント
・LDKの形状はL字型にすると来客空間と生活空間を分けることができます
・トイレは玄関近くに配置すると、お客さんが生活空間まで入らずに行けます
・トイレの出入りが気にならないように壁を設けるなど配慮が必要
・リビングに隣接させれば普段はリビングの続き間、畳コーナーとして使えます


外からのプライバシーを守る間取り
隣の家が近い場合は窓の位置に注意が必要です。向かい合わせに窓が重ならないように設計段階で調整しておくとよいでしょう。
また、トイレやバスルームの窓は立ったときに外から見えないような位置とサイズにしましょう。表面に模様がついた型板ガラスは、光を通しながらも視線を遮ることができ、バスルームやトイレ、洗面室によく使います。



屋外空間をうまく暮らしに取り入れた間取り
リビングと屋外空間がひと続きになるタイルテラス・ウッドデッキが人気です。子どもの遊び場やバーベキューの場所として活用できます。

◎ポイント
・コの字型の囲まれた空間にするとプライベート感を保つことができます


両親と一緒に暮らす間取りの工夫
二世帯住宅では互いが気兼ねなく暮らせるように生活ゾーンを分けてプランすることが大切です。どの空間を兼用で使うか家族で話し合っておきましょう。バスルーム、洗面室、キッチンの水回りの設備を共有するケースが多く見られます。

◎ポイント
・子ども世帯と親世帯の境目に水回りの設備を置くのがおすすめ
・親世帯のゾーンと水回りを近くしてあげるとよいでしょう
・親世帯のゾーンにミニキッチンをとるとお茶などを入れるときに便利

子どもの成長によって変化できる間取り
子どもが小さいときにはワンルームとして使い、成長後に壁で仕切り2つの部屋にすることができます。後から壁を設置するのは施工上は難しくありませんが、設計段階からプランナーに意向を伝えておきましょう。それに対して、後から壁を撤去するのは構造の面で難しいこともあります。

◎ポイント
・仕切ることを見越してドアはあらかじめ2箇所に作っておきます。

ピアノを置くための間取りの工夫
ピアノが搬入できる開口とルートを確保しておくことが重要です。
遮音効果と吸音効果がある防音材を部屋の壁・天井・床に取り付けて防音室をつくることもできます。中庭住宅が標準仕様にしている断熱材ダンパックは遮音・吸音効果にも優れています。


◎ポイント
・防音ドアや2重窓(内窓)で防音効果をさらに高めることができます。
中庭住宅の間取りづくり
まずは敷地の状況を見極めることからスタートします。敷地形状・環境・風通し・日当たり・法規制など様々な条件に配慮した上でプランを作成しています。自由に間取りを設計でき、施工まで一貫して行えることが中庭住宅の特徴です。

また、ご家族の現在の生活スタイルだけでなく将来の生活スタイルをイメージして、間取りのご提案をしています。創立1993年以来、約2,400組の家づくりのノウハウの蓄積があり、先を見通したアドバイスにつながっています。
ご家族の理想の生活スタイルをお聞かせください。プランナーと一緒に夢を叶える間取りを作りましょう。
私がご案内しました
中庭住宅株式会社
設計部 課長 プランナー
樽井謙一


設計部 プランナー
山下優衣


【vol.1】はこちら
収納・リビング・水回り・家事動線に便利な間取りアイデア9選【vol.1】