design casa 三木町モデルハウス
家族の快適な暮らしとスタイリッシュなデザインを融合させた住まい
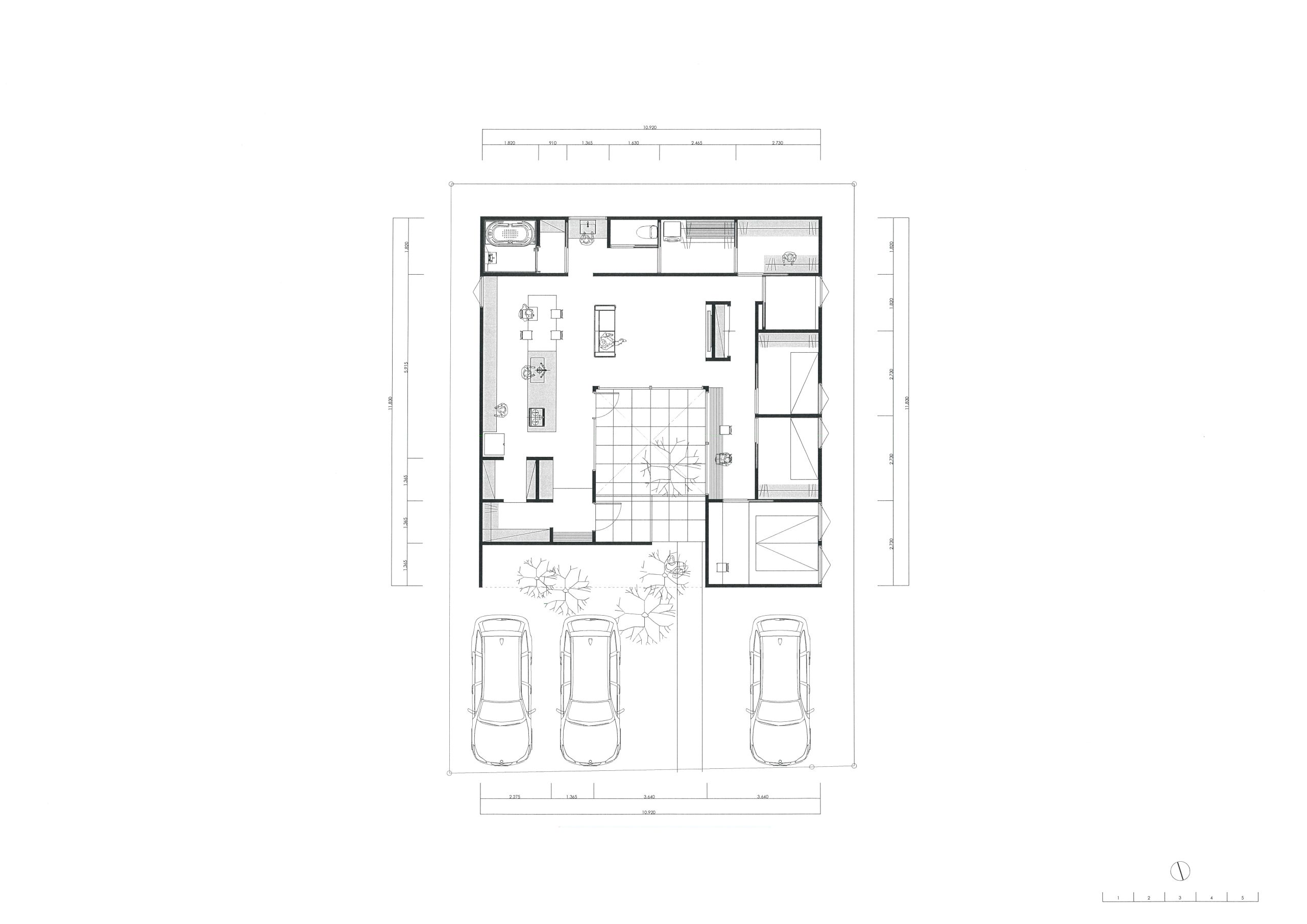
住む人すべてが「ここに住みたい」と感じるような設計が魅力です。2つの子ども部屋と猫部屋に加え、集中して学習できるスペースが子ども部屋の前に設置されています。寝室は小上がり仕様で布団に寝られるデザインで、間接照明が穏やかな雰囲気を演出。収納棚も完備され、機能性も抜群です。
リビングは中庭と縦ルーバーを採用し、プライバシーを守りながら明るい空間を実現。カーテンが不要で、ペットやお子様が外へ飛び出す心配もありません。家事動線にも配慮が行き届き、土間収納からキッチンに直行できる回遊動線や冷蔵庫近くに配置されたパントリーで、効率的な動きが可能です。
内装は壁紙や色味を統一し、ホテルライクなくすみカラーで上質な空間を演出。さらに、洗面スペースやランドリールームには家族と来客それぞれが使いやすい動線設計が施されています。
家族の絆を深め、快適さと美しさを兼ね備えた唯一無二の住まいとなっています。
| 床面積 | 1階:101.02㎡(30.55坪) |
|---|---|
| 延床面積 | 101.02㎡(30.55坪) |
| 施工面積 | 111.44㎡(33.71坪) |





TEL: 087-867-6767
FAX: 087-869-4646